FLOUT® Systems
Example Alternator drawings
Alternator Assembly Instructions
Download PDF
Click image for full size JPG
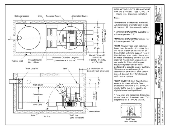
One of the first criticisms from the bell siphon camp was that the Flout would not alternate. This is true. If two were installed side by side, the one that sinks first will always sink first. On the other hand, bell siphons will naturally alternate, assuming they are installed perfectly level with each other, which is difficult to do! With help from an additional device, Flouts will indeed alternate.
The ALTERNATOR employs a see-sawing bucket. It is controlled by a float and cam and changes state upon each fill and emptying of the dosing chamber. The low side of the bucket simply restrains the Flout, causing it to sink before the other. The idle Flout rides the surface of the liquid down and then back up, never handling any liquid. After the bucket flips, the other Flout will sink on the next refill.
The Alternator requires at least 15 inches of drawdown (dd) but can alternate Flouts up to 50 inches of drawdown. Shallower arrangements are possible using the CueBox Sequencer. Very large arrangements are possible using the Alternator and two smalerl Flouts as a trigger.
Now available with 15 thru 50 inch drawdown 3" Flouts. Less on larger and multiple Flouts
Replacing failed Alternating Siphons





