Site Navigation
[Skip]
Home
FLOUT® Systems
About the Flout
Why is a Flout® better?
FAQ'S
The Single Flout
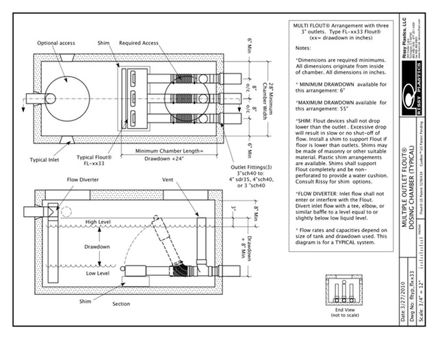
MultiFlout
Dual Alternating Flout
Cuebox
Flout installation examples
Lewey Lake Campground, NY
Ashford, CT
South Africa
Patterson, NY
Siphon replacement examples
Single Siphon replacement
Andover Job Number One
Alternating Siphon replacement
Alternating Siphon Cuebox Job 1
Alternating Siphon Cuebox Job 2
Foam and Cement method
Dose Counter DC3 and DC4
Designing Flout Systems
Basic Flout Design
Designing Alternating Flouts
Designing Cuebox™ Systems
Flout Flow Rates
Flout® Numbering System
Flout Approvals
Installing Flout Systems
Install 1
For the Service Provider
Service 1
For the Owner/Operator
The basic Flout® system
For the Regulator
Checklist for a new Flout system
Alternator System Check list
Cuebox System Check list
Retrofit System Check list
Dose Counter Check list
PRODUCTS
Weep Hole Formers
Universal Reducer / Plug
"Plak-It" Placards
Safety Tags
Miniboot™ Pipe Seals
Click n' Stik™ Septic Filter
Dose Counter
Glossary
Downloads
Search
Contact Rissy
About Rissy
Where to buy
Terms
Other Projects
The Center Signal
The Hydropliance
Lightspikes!
Site Map
Triple 3" Outlet Flout Chamber
>
Back
PDF
DWG
>
Back
Rissy Plastics, LLC, 350 Cedar Lane, Torrington, CT 06790 USA, +1-860-482-1645
Call or text Jim directly at +1-860-459-9995 or email TANXRUS@aol.com ©2025 Rissy Plastics, LLC
[Back To Top]